Colón 1513, Ciudad Vieja

Puntas Santiago 1580, Carrasco

+598 93 700 012

00 598 2915 5334

Comparar listados

Carrasco Apartamento con vista al mar

USD$733/ALQUILER

Detalle

Actualizado en abril 24, 2025 a 1:04 pm

  • Apartamentos
  • USD $733 / ALQUILER
  • 63 m2
  • 75 m2
  • 2
  • 1
  • 1
  • 1970
  • Alquiler

Descripción

Apartamento con vista a la playa carrasco, construido en 1970, el cual se reciclo en el 2020.

Ubicado a tan solo unas cuadras del Hotel Sofitel Carrasco y al centro de comercios que rodea la calle Arocena, este apartamento le proporcionara tranquilidad y comodidad a Ud. y su familia.

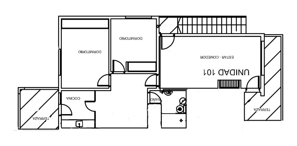
Se ingresa al apartamento,del primer piso, por una entrada privada al costado del edifico a través de una escalera. El acceso al apartamento es luminoso y se abre a un  gran living con estufa a leña, con salida al balcón. El balcón le permite una conexión con la la playa con vistas de las increíbles atardeceres montevideanas.

Un apartamento muy luminoso que goza de luz a la mañana y tarde al tener un contra frente despojado.

El comedor y la cocina integrados, con una barra americana.

El dormitorio principal con armarios amplios y aire acondicionado. Segundo dormitorio con armarios amplios también.
1 Baño amplio completo.

La cocina tiene una salida a la terraza techada que cuenta con la instalación necesaria para lavar ropas.

Garaje individual grande con portón.

El precio de alquiler 33,000 pesos + gastos comunes de $ 2000 mensuales. Incluye agua y gastos de mantenimiento.

Otros gastos: $1200 de tributos domiciliarios cada 2 meses.

Garantía a convenir.

Dirección

  • Ciudad: Montevideo
  • Estado / Condado: Montevideo
  • Barrio: Carasco Sur, Carrasco
  • País: Uruguay, República Oriental de

Propiedades similares

USD$1.300/RENOVADO ALQUILER MENSUAL

Bañera: 1mts2: 170

local comercial

hace7 años

USD$1.300/RENOVADO ALQUILER MENSUAL

Bañera: 1mts2: 170

local comercial

hace7 años

USD$4.200

Dormitorios: 4Baños: 5mts2: 360

Apartamentos

hace7 años

USD$4.200

Dormitorios: 4Baños: 5mts2: 360

Apartamentos

hace7 años

Dormitorios: 3Baños: 4MTS2: 244

Apartamentos

hace6 años

A CONSULTAR

Dormitorios: 3Baños: 4MTS2: 244

Apartamentos

hace6 años

USD$170.000

Cama: 1Bañera: 1MTS2: 37

Apartamentos

hace5 años

USD$170.000

Cama: 1Bañera: 1MTS2: 37

Apartamentos

hace5 años


WhatsApp chat